GB 10395.7-2006 農林拖拉機和機械 安全技術要求 第7部分:聯合收割機、飼料和棉花收獲機
- 發表時間:2023-01-27
- 來源:共立消防
- 人氣:
1 范圍
本部分規定了保證操作者及其他作業人員在自走式聯合收割機、自走式飼料和棉花收獲機正常運轉、保養維修和使用過程中安全的技術要求。
本部分是GB10395.1的補充。本部分還給出了使用自走式聯合收割機、自走式飼料和棉花收獲機時,防止發生意外事故的指南。
2 規范性引用文件
下列文件中的條款通過GB 10395的本部分的引用而成為本部分的條款。凡是注日期的引用文件,其隨后所有的修改單(不包括勘誤的內容)或修訂版均不適用于本部分,然而,鼓勵根據本部分達成協議的各方研究是否可使用這些文件的最新版本。凡是不注日期的引用文件,其最新版本適用于本部分。
GB/T 4269.1 農林拖拉機和機械、草坪和園藝動力機械 操作者操縱機構和其他顯示裝置用符第1部分:通用符號(idt ISO 3767-1:1991)
GB/T 4269.2 農林拖拉機和機械、草坪和園藝動力機械 操作者操縱機構和其他顯示裝置用符第2部分:農用拖拉機和機械用符號(idt ISO 3767-2:1991)
GB/T 6979.1 收獲機械 聯合收割機和功能部件 第1部分:詞匯(ISO 6689-1:1997,MOD)GB/T 10394.1 飼料收獲機 第1部分:術語(idt ISO 8909-1:1994)
GB 10395.1-2001 農林拖拉機和機械 安全技術要求 第1部分:總則(eqv ISO 4254-1:1989)|
3 術語和定義
GB/T 6979.1和GB/T 10394.1確立的術語和定義適用于本部分。
4 技術要求
4.1 操作者工作位置
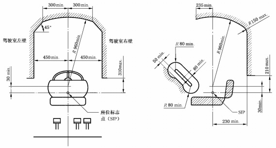
4.1.1 內部空間尺寸
駕駛室內部最小空間尺寸應符合圖1規定。圖1中尺寸為座位處于最高和中間水平位置、懸架處于中間位置時的尺寸。
4.1.2 座位尺寸和布置
座位位置應舒適、可調,座位尺寸應符合圖2規定。
對輪(軌)距大于1150mm的機器,座位位置的調整應不使用工具手動進行,垂直方向的最小調整量為±30mm、水平(縱向)方向的最小調整量為±50mm,推薦應達到的最大可調整量為±75mm。垂直方向調整和水平方向調整應能獨立進行。
4.1.3 方向盤
方向盤軸線最好位于座位縱向中心線上,任何情況下偏置量均應不大于50mm。
固定部件和方向盤之間的間隙應符合圖1規定。
單位為毫米

圖1 駕駛室最小內部空間尺寸
單位為毫米

圖2 操作者座位裝置尺寸
4.1.4 操作者操縱裝置
操作者操縱裝置和它們的位置應用符合GB/T 4269.1和GB/T 4269.2規定的清晰耐久符號標出,或用適合操作者的文種描述。
操縱力大于等于50N的操縱裝置周圍應有最小50mm的間隙。
操縱力小于50N的操縱裝置周圍應有最小25mm的間隙。指尖操縱的操縱裝置,只要不存在誤操縱相鄰操縱裝置的危險,則無上述間隙要求。
4.1.5 剪切與擠壓部位
操作者坐在座位上,手或腳觸及范圍內不應有剪切或擠壓部位。如果座位后部相鄰部件具有光滑的表面、座位靠背各面交界無棱邊,則認為座位靠背和其后部相鄰部件間不存在危險部位。
4.1.6 進入操作者工作位置的門道
駕駛室門道尺寸應符合圖3規定。圖3中尺寸與下列尺寸有關:
a)門框和門在打開時,均應滿足的門道最小尺寸;
b)操作者站立平臺離地高度大于550mm和相應門檻離地高度大于650mm時,應設置的附加門道梯子的尺寸。
進入操作者座位的通道應暢通(寬度最小為250mm),操縱裝置不應介入,以保證操作者腳踏實地放置。該要求適用于操縱裝置處于任何位置,操作者持續操縱裝置除外。
單位為毫米

a——對于無門道梯子直接進入的駕駛室,門道總高度1350mm/min可以減至1300 mm/min,寬度550 mm/min可以減至450mm/min。
b——450mm為推薦值。
圖3 主門和門道設施的尺寸
凸起部件、操縱裝置、梯子或手柄纏繞或夾持操作者或操作者衣服造成的意外阻塞情況,應降低到最小程度。
無駕駛室的半喂入聯合收割機應至少設置一塊足夠大的后視鏡;其他機器應至少設置兩塊足夠大的后視鏡,每側一個,以保證行駛安全。若操作者在駕駛操作位置看不到機器后方,則應裝倒車聲響裝置。
駕駛室應設置保持門開啟的裝置。密封式駕駛室應設置配適當過濾器的風扇通風裝置。
4.1.7 駕駛室緊急出口
駕駛室至少應有兩個在不同面上的緊急出口(前面、后面和頂面都可為設緊急出口的面)。緊急出口在駕駛室內不使用工具應容易打開。
緊急出口橫截面應至少能包容一個長軸為640mm、短軸為440mm的橢圓。
4.1.8 進入操作者平臺/座位的梯子
4.1.8.1 梯子除符合GB 10395.1-2001中10.1的要求外,還應滿足下列要求:
a) 梯子的結構應防止形成泥土層。
b) 在特殊情況下(水稻收割機、履帶行走輪或傾斜補償機構),最低一級梯子踏板表面離地高度可以為700mm。
c)梯子傾斜度推薦為:當從梯子上下來時向下看可看到下一級梯子踏板外緣。
d)梯子向上或向下移動時,不應造成擠壓或沖擊操作者或在場者的現象。
4.1.8.2 門道梯子兩側應設置扶手或扶欄,以使操作者與機器始終保持三處接觸。扶手/扶欄的橫截面尺寸應在25mm~35mm之間。扶手/扶欄較低端離地高度應不大于1600mm,扶手/扶欄后側應具有最小50mm的放手間隙。距梯子最高一級踏板高1000mm處應設抓手。扶欄長度至少為150mm。
4.2 其他類型的梯子和平臺
4.2.1 進入維修和保養區的梯子和通道應符合4.1.8規定的要求。在特殊情況下(受高度限制),扶手或扶欄高度可小于1000mm,但不應小于650mm。
維修平臺上應設高度為1000mm的防護欄,以防止工作人員從機器上跌落,在特殊情況下(受高度限制),防護欄/扶欄高度可小于1000mm,但不應小于650mm。
4.2.2 機器應設置適當扶欄的地方,不應把梯型踏板作為扶欄。
4.3 割臺、喂入螺旋輸送器和撥禾輪
使用說明書中和機器的相關位置上,均應提醒操作者,在收割裝置和/或切割裝置(如:割臺、撥禾輪、切割器、撿拾器、螺旋剝離器等)位置處會出現與其功能相關的剪切現象。
撥禾輪的最外緣和相鄰固定部件之間應有25mm的間隙。
割臺傳動系分離機構應具有防止意外接合的結構。
建議設置輸送器反轉機構。
4.4 糧箱和糧箱螺旋輸送器
4.4.1 糧箱
使用說明書中和機器上,應分別給出適當的安全標志,指出在機器運轉時不得進入糧箱。
糧箱結構應使谷物斷流的情況降低到最小程度。
根據安全需要,在糧箱外面設置安全檢查用的階梯和扶欄。
根據安全需要,在機器上配備安全取樣裝置。
4.4.2 糧箱分配螺旋輸送器和卸糧螺旋輸送器
所有螺旋輸送器都應配置防護裝置,防止與其意外接觸。糧箱蓋不應作為安全裝置,除非糧箱蓋打開時,由連鎖裝置使螺旋輸送器停止運轉。
如果螺旋輸送器設有符合下列規定的擋板也可以認為滿足防護要求:
a) 擋板能防止機器操縱位置或其他站立位置上的操作者,意外地接觸螺旋輸送器(安全距離見GB 10395.1);
b) 擋板固定牢固,如果擋板能推開或擺轉,在機器運行期間應牢固固定在防護位置上;
以上為標準部分內容,如需看標準全文,請到相關授權網站購買標準正版。
-
IG541混合氣體滅火系統
IG541混合氣體滅火系統:IG-541滅火系統采用的IG-541混合氣體滅火劑是由大氣層中的氮氣(N2)、氬氣(Ar)和二氧化碳(CO2)三種氣體分別以52%、40%、8%的比例混合而成的一種滅火劑 -
二氧化碳氣體滅火系統
二氧化碳氣體滅火系統:二氧化碳氣體滅火系統由瓶架、滅火劑瓶組、泄漏檢測裝置、容器閥、金屬軟管、單向閥(滅火劑管)、集流管、安全泄漏裝置、選擇閥、信號反饋裝置、滅火劑輸送管、噴嘴、驅動氣體瓶組、電磁驅動 -
七氟丙烷滅火系統
七氟丙烷(HFC—227ea)滅火系統是一種高效能的滅火設備,其滅火劑HFC—ea是一種無色、無味、低毒性、絕緣性好、無二次污染的氣體,對大氣臭氧層的耗損潛能值(ODP)為零,是鹵代烷1211、130 -
手提式干粉滅火器
手提式干粉滅火器適滅火時,可手提或肩扛滅火器快速奔赴火場,在距燃燒處5米左右,放下滅火器。如在室外,應選擇在上風方向噴射。使用的干粉滅火器若是外掛式儲壓式的,操作者應一手緊握噴槍、另一手提起儲氣瓶上的


