MT 235-2011 立井多繩罐籠 平衡錘
- 發表時間:2022-08-29
- 來源:共立消防
- 人氣:
1 范圍
本標準規定了立井多繩罐籠平衡錘(以下簡稱平衡錘)的產品分類、技術要求、試驗方法、檢驗規則、 標志、包裝、運輸和貯存。
本標準適用于立井多繩罐籠配套提升的平衡錘,與其配套的罐籠有1 t、1.5 t和3 t礦車立井多繩罐 籠。也適用于立井多繩交通罐籠配套提升的平衡錘。
2 規范性引用文件
下列文件對于本文件的應用是必不可少的。凡是注日期的引用文件,僅注日期的版本適用于本文 件。凡是不注日期的引用文件,其最新版本(包括所有的修改單)適用于本文件。
GB/T 27 六角頭鉸制孔用螺栓A和B級
GB/T 116 鉚釘技術條件
GB/T 699 碳素結構鋼
GB/T 700 碳素結構鋼
GB/T 985.1 氣焊、焊條電弧焊、氣體保護焊和高能束焊的推薦坡口
GB/T 1184-1996 形狀和位置公差未注公差值
GB/T 1228 鋼結構用高強度大六角頭螺栓
GB/T 1591 低合金高強度結構鋼
GB/T 1804-2000 一般公差未注公差的線性和角度尺寸的公差
GB/T 3632 鋼結構用扭剪型高強度螺栓連接副
GB/T 9286 色漆和清漆漆膜的劃格試驗
GB 50017 鋼結構設計規范
JB/T 5000.3-2007 重型機械通用技術條件 第3部分:焊接件
JB/T 5000.10 重型機械通用技術條件 第10部分:裝配
JB/T 5000.12-2007 重型機械通用技術條件 第12部分:涂裝
MT/T 154.1 煤礦機電產品型號編制方法 第1部分:導則
MT 236 矩形鋼罐道滾輪罐耳
MT 237.3 多繩提升容器 B型鋼絲繩懸掛裝置 圓尾繩懸掛裝置
MT 237.4 多繩提升容器B型鋼絲繩懸掛裝置扁尾繩懸掛裝置
MT 684 礦用提升容器重要承載件無損探傷方法與驗收規范
《煤礦安全規程》(國家安全生產監督管理總局、煤礦安全監察局)
3 產品分類
3.1 型式
3.1.1 首繩懸掛裝置與平衡錘用銷軸直接連接,連接孔中心距按多繩摩擦式提升機鋼絲繩間距確定。 首繩懸掛裝置超過平衡錘斷面寬度尺寸時應傾斜布置。
3.1.2 尾繩懸掛裝置采用MT 237.3、MT 237.4規定的圓尾繩和扁尾繩兩種。
3.1.3 平衡錘有繩罐道和矩形鋼罐道兩種形式。
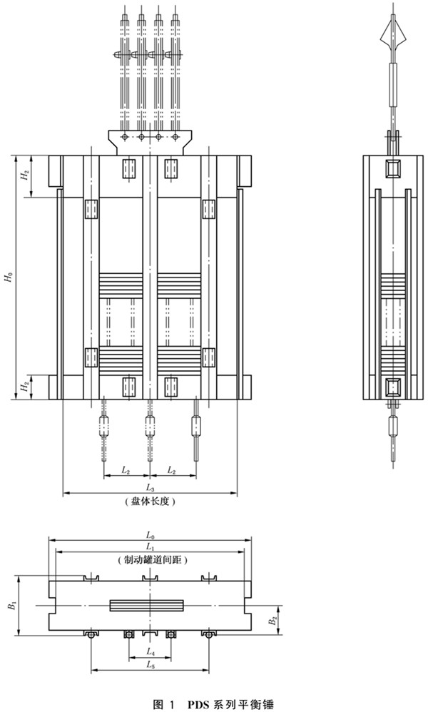
使用繩罐道的平衡錘,罐道繩布置在平衡錘的一側,采用套筒式滑動繩罐耳導向(見圖1)。

使用矩形鋼罐道的平衡錘,矩形鋼罐道布置在平衡錘的兩端,采用MT 236規定的滾輪罐耳沿矩形 鋼罐道導向(見圖2)。

3.1.4 平衡錘采用型鋼立柱。立柱與各盤體、盤體主要受力桿件之間采用GB/T 1228、GB/T 3632規定的高強螺栓或GB/T 27規定的較制孔用螺栓聯接。
3.1.5 平衡錘過卷時,采用上、下盤制動。制動罐耳均設置在平衡錘的兩端。
3.1.6 重錘塊為鑄鐵塊。
3.2 分類
平衡錘按運行罐道形式、質量范圍及斷面尺寸分為5個質量系列,14個品種(見表1)。
表1 基本參數
平衡錘 型號 | 斷面尺寸 mmXmm | 平衡錘 質量范圍 kg | 提升鋼絲繩 | 尾繩 | 矩形鋼 罐道寬度 mm | ||
首繩懸掛板允許 最大使用載荷 kN | 數量 根 | 尾繩形式 與間距 | 數量 根 | ||||
PDS-8A | 2 500X 780 | 6 000~8 000 | 350 | 4 | 與配套的 罐籠匹配 | 2或3 | 一 |
PDG-8A | 180 | ||||||
PDS-14A | 8 000?14 000 | 560 | —— | ||||
PDS-14B | 2 500X 910 | ||||||
PDG-14A | 2500X780 | 180 | |||||
PDG14B | 2 500X 910 | ||||||
PDS-20A | 2500X780 | 14 000~20 000 | 660 | 4或6 | —— | ||
PDS-20B | 2 500X 910 | ||||||
PDG-20A | 2500X780 | 180 | |||||
PDG-20B | 2 500X 910 | ||||||
PDG-30B | 2 500X 910 | 20 000~30 000 | 770 | 180 或 200 | |||
PDG-30C | 2800X1200 | ||||||
PDG-40B | 2 500X 910 | 30 000?40 000 | 940 | ||||
PDG-40C | 2800X1200 | ||||||
3.3 產品型號
3.3.1 平衡錘的型號編制方法應符合MT/T 154.1的規定。
3.3.2 產品型號的組成和排列方式如下:

示例:
運行罐道為繩罐道、名義質量14 t、斷面尺寸(2 500 mmX 780 mm)為A型的立井多繩平衡錘,其型號為:
3.4 基本參數與主要尺寸
3.4.1 平衡錘的基本參數應符合表1的規定。
以上為標準部分內容,如需看標準全文,請到相關授權網站購買標準正版。
-
IG541混合氣體滅火系統
IG541混合氣體滅火系統:IG-541滅火系統采用的IG-541混合氣體滅火劑是由大氣層中的氮氣(N2)、氬氣(Ar)和二氧化碳(CO2)三種氣體分別以52%、40%、8%的比例混合而成的一種滅火劑 -
二氧化碳氣體滅火系統
二氧化碳氣體滅火系統:二氧化碳氣體滅火系統由瓶架、滅火劑瓶組、泄漏檢測裝置、容器閥、金屬軟管、單向閥(滅火劑管)、集流管、安全泄漏裝置、選擇閥、信號反饋裝置、滅火劑輸送管、噴嘴、驅動氣體瓶組、電磁驅動 -
七氟丙烷滅火系統
七氟丙烷(HFC—227ea)滅火系統是一種高效能的滅火設備,其滅火劑HFC—ea是一種無色、無味、低毒性、絕緣性好、無二次污染的氣體,對大氣臭氧層的耗損潛能值(ODP)為零,是鹵代烷1211、130 -
手提式干粉滅火器
手提式干粉滅火器適滅火時,可手提或肩扛滅火器快速奔赴火場,在距燃燒處5米左右,放下滅火器。如在室外,應選擇在上風方向噴射。使用的干粉滅火器若是外掛式儲壓式的,操作者應一手緊握噴槍、另一手提起儲氣瓶上的


