GB/T 30758-2014 耐火材料 動態楊氏模量試驗方法(脈沖激振法)
- 發表時間:2022-12-10
- 來源:共立消防
- 人氣:
1 范圍
本標準規定了通過測定長條狀和圓柱狀耐火制品試樣在彎曲振動狀態下的共振頻率,由制品的共振頻率、質量和尺寸計算其楊氏模量的試驗方法。
注:盡管本標準沒有明確描述,采用合適的測試儀器時此方法也適用于高溫楊氏模量的測定。
本標準沒有規定使用中所有與安全有關的事項。本標準使用者有責任預先建立適當的人身安全條例并確定其限定的范圍。
2 規范性引用文件
下列文件對于本文件的應用是必不可少的。凡是注日期的引用文件,僅注日期的版本適用于本文件。凡是不注日期的引用文件,其最新版本(包括所有的修改單)適用于本文件。
ISO 5022:1979 定形耐火制品 抽樣驗收規則(Shaped refractory products——Sampling and ac-ceptance testing)
ISO 8656-1:1988 耐火制品 原料和不定形材料抽樣 第1部分:抽樣方案(Refractory prod-ucts-Sampling of raw materials and unshaped products-Part 1:Sampling scheme)
3 術語和定義
下列術語和定義適用于本文件。
3.1
彈性模量 modulus of elasticity;MOE
低于比例極限下,材料應力與應變的比值。
3.2
比例極限 proportional limit
材料不偏離應力與應變比值(胡克定律)曲線的情況下,所能夠承受的最大應力值。
3.3
均一性 homogeneous
結構、密度和材質相同。
注:均一性要求所取得的小試樣能代表原磚的整體特點,對于耐火材料,只要試樣的尺寸比內部大顆粒、晶體、氣孔和微裂紋尺寸大,試樣就被認為是均一的。
3.4
各向同性 isotropic
試樣的彈性性能在所有方向上都是相同的。
3.5
共振頻率 resonant frequency
試樣受彎曲振動時發生共振的頻率。
注:共振頻率一般由試樣的彈性模量、質量和試樣尺寸決定,在振動模式中,最低的共振頻率為材料的固有頻率。
3.6
彎曲振動 flexural vibrations
長條狀或者圓柱狀試樣受微小彎曲應力作用的一種振動。
3.7
節點 nodes
試樣振動過程中振幅為零的位置。
注:對于試樣的固有彎曲頻率,節點一般在距試樣一端距離為0.224L處,其中L為試樣長度。
3.8
反節點 anti-nodes
不受約束的長條狀或圓柱狀試樣受振后的最大振幅點位置,一般反節點位置有兩個或者更多。
注:共振時,反節點一般位于試樣的兩端和中心部位。
3.9
平面彎曲 in-plane flexure
試樣彎曲方向平行于其主平面。
3.10
垂面彎曲 out-plane flexure
試樣彎曲方向垂直于其主平面。
4 原理
沖擊器敲擊合適幾何形狀的試樣后,測試試樣的彎曲共振頻率。
傳感器(接觸式或非接觸式)接收試樣的振動信號并將其轉化為電信號,選擇合適的試樣支撐位置、敲擊位置與信號接收點接收試樣的振動信號,通過信號分析器分析得出試樣的固有振動頻率,將獲得的固有振動頻率、試樣尺寸和質量代入公式計算得出試樣的動態楊氏模量。
5 意義和用途
意義和用途如下:
a)可用于評價耐火材料的特性,輔助耐火材料的研究及其質量控制;
b)適用于測試均一性耐火材料的楊氏模量;
c) 為動態測試方法,可測試長條狀和圓柱狀試樣的楊氏模量;
d) 為無損檢測,測試過程中,試樣僅發生微小變形,對試樣損傷非常小,因此測試后試樣仍可用于其他性能測試;
e) 可依據試樣尺寸、組成和結構變化選擇測試范圍;
f) 利用沖擊器(錘)敲擊被簡單支撐的試樣;
g) 不適用于有大裂紋或空隙的試樣;
h) 只局限于測試具有規則幾何形狀的試樣,如對面平行的長條狀和圓柱狀,因為楊氏模量的計算公式由試樣的相關尺寸、質量和共振頻率組成;
i) 試樣表面不平整或過分粗糙會對計算結果的準確性產生嚴重影響,動態楊氏模量與試樣厚度的立方成反比,所以試樣厚度的變化對結果有重要影響;
j) 假定試樣為自由振動,無任何約束或阻礙,因此試樣應被合適放置,確保其能自由振動。
6 設備
6.1 激振設備
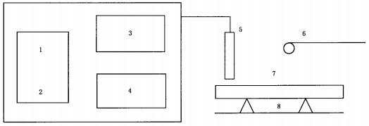
激振設備用于激發試樣振動,然后精確探測、分析和記錄試樣的固有頻率或周期。圖1為該設備的結構原理圖,包括沖擊器、傳感器(將機械振動轉換為電信號)、電信號分析系統(包括信號放大器、信號分析器和頻率讀出裝置)。

說明:
1——頻率顯示;
2——頻率讀出;
3——信號放大器;
4——信號分析器;
5——傳感器;
6——沖擊器;
7——試樣;
8——支撐系統;
9——電氣系統。
圖1 試驗設備結構原理圖
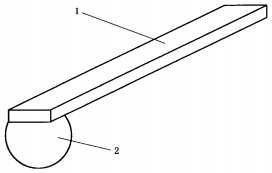
6.2 沖擊器
沖擊器的重量應滿足給予試樣的振動信號足夠大,達到可測量的機械振動信號;但也不宜過大,以防對試樣造成物理損壞或使試樣移動。典型的沖擊器見圖2。
注:沖擊器的大小取決于被測試樣的大小和物理特性。

說明:
1——韌性聚合物手柄;
2——鋼球或其他硬金屬球。
以上為標準部分內容,如需看標準全文,請到相關授權網站購買標準正版。
-
IG541混合氣體滅火系統
IG541混合氣體滅火系統:IG-541滅火系統采用的IG-541混合氣體滅火劑是由大氣層中的氮氣(N2)、氬氣(Ar)和二氧化碳(CO2)三種氣體分別以52%、40%、8%的比例混合而成的一種滅火劑 -
二氧化碳氣體滅火系統
二氧化碳氣體滅火系統:二氧化碳氣體滅火系統由瓶架、滅火劑瓶組、泄漏檢測裝置、容器閥、金屬軟管、單向閥(滅火劑管)、集流管、安全泄漏裝置、選擇閥、信號反饋裝置、滅火劑輸送管、噴嘴、驅動氣體瓶組、電磁驅動 -
七氟丙烷滅火系統
七氟丙烷(HFC—227ea)滅火系統是一種高效能的滅火設備,其滅火劑HFC—ea是一種無色、無味、低毒性、絕緣性好、無二次污染的氣體,對大氣臭氧層的耗損潛能值(ODP)為零,是鹵代烷1211、130 -
手提式干粉滅火器
手提式干粉滅火器適滅火時,可手提或肩扛滅火器快速奔赴火場,在距燃燒處5米左右,放下滅火器。如在室外,應選擇在上風方向噴射。使用的干粉滅火器若是外掛式儲壓式的,操作者應一手緊握噴槍、另一手提起儲氣瓶上的


